El respeto y la originalidad guían la última rehabilitación de Elisa Valero
La arquitecta Elisa Valero firma la elegante rehabilitación del Colegio San Fernando de Granada, antiguo convento de trinitarias del siglo XVII. El edificio estuvo abandonado mucho tiempo hasta que en pleno siglo XX se reformó para convertirlo en seminario menor, función que cumplió durante unos 40 años.
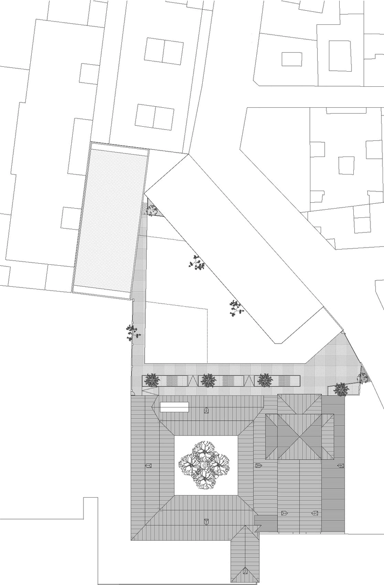
La nueva intervención se ha desarrollado en lo que aún quedaba del seminario, ya que parte de la zona noroeste fue demolida a finales del siglo pasado. Esto suponía un problema adicional, puesto que los muros de carga interiores habían quedado al descubierto como exteriores.
Con tres plantas de altura, la construcción se extiende alrededor de un patio central con limoneros, conservándose en los niveles superiores una galería de arcos cerrada que actúa como distribuidor. Justo esas plantas eran las más afectadas por el largo periodo de abandono, que había dado origen a humedades y vencimientos de cubiertas.
Dado el gran valor patrimonial del conjunto, el estudio de Elisa Valero se centró en respetar la geometría original, reasignando espacios y poniendo de relieve las arquerías interiores y los ricos pavimentos de baldosa hidráulica, muy bien conservados. Se incorporó también un núcleo de baños en cada planta, un ascensor y una nueva escalera exenta.
Junto a las instalaciones rehabilitadas, el colegio disponía de un solar rodeado de medianeras de gran altura, ideal para una ampliación. De hecho, la normativa urbanística permite la construcción de un edificio de hasta seis plantas. Sin embargo, el terreno es de rellenos y hay que profundizar hasta los 20 metros para encontrar el firme, lo que penaliza la cimentación.
Ante esta situación, se decidió construir el nuevo pabellón polideportivo en una parte de la parcela, aunque se calculó y preparó la estructura para que pueda levantarse encima un edificio completo en el futuro. Se optó así mismo por emplear un sistema de madera contralaminada (CLT) con vigas en V sin apoyos intermedios. Una solución innovadora y resistente que brinda un volumen interior diáfano.
Los aportes de luz natural quedan asegurados por tres ventanas laterales y dos entradas cenitales en los extremos. En cuanto a la distribución, no puede ser más sencilla: se accede por la parte alta del pabellón, quedando a un lado los vestuarios y al otro una rampa que desciende en zigzag hasta la pista deportiva.



















