El nuevo Premio Pritzker habla español
El pasado 13 de enero, la Fundación Hyatt anunciaba la concesión del Premio Pritzker 2016 al chileno Alejandro Aravena. Se trata del cuarto arquitecto latinoamericano que consigue este prestigioso galardón, tras el mexicano Luis Barragán (1980) y los brasileños Oscar Niemeyer (1988) y Paulo Mendes da Rocha (2006).
El jurado destacó la práctica colaborativa en los diseños de Aravena, así como su esfuerzo constante por crear obras artísticas y soluciones para los menos privilegiados. Una responsabilidad social plasmada en unos espacios públicos y privados acogedores, eficientes e inspiradores que mejoran la vida de las personas.
Y es que el recorrido arquitectónico de este creador de solo 48 años y de su estudio Elemental, con sede en Santiago, es bastante ecléctico. Con la mayoría de su obra en tierras chilenas, ha ido alternando realizaciones majestuosas, como las imponentes Torres Siamesas (2004) de la Universidad Católica de Chile, con construcciones como Quinta Monroy (2005), un modesto conjunto de viviendas sociales de 35 m2 en Iquique, una ciudad situada en el desierto.
Para desentrañar las claves de esta exploración arquitectónica tan particular, podemos fijarnos en tres de sus obras. Empezaremos con otra de sus realizaciones para la Universidad Católica de su Santiago natal: el Centro de Innovación (2013), un punto de encuentro entre empresas e investigadores académicos con el desarrollo del país como meta.
En este caso, se ideó todo el edificio para favorecer las posibilidades de contacto y los lugares de intercambio de ideas, incluyendo desde un atrio central abierto y transparente hasta bancos para reuniones informales en los vestíbulos de los ascensores.
Además, se tuvo en cuenta el clima seco de la ciudad, por lo que se evitó crear una gran torre de vidrio que generase un nefasto efecto invernadero. En su lugar se optó por un exterior de hormigón visto, ventilación cruzada y ventanas retranqueadas que evitan la radiación solar directa. El aspecto opaco, casi monolítico, de la fachada se aligeró mediante unas enormes aberturas que aportan carácter y espectacularidad.
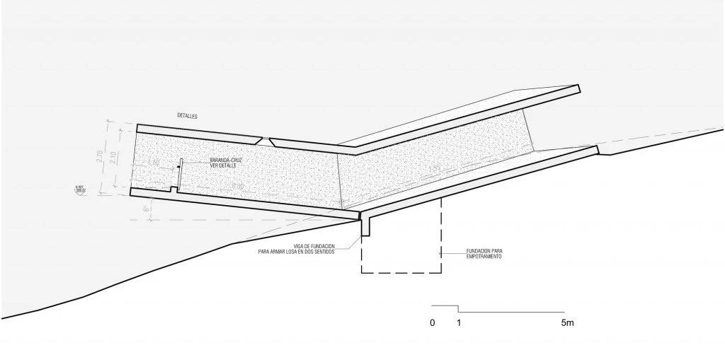
También en hormigón, pero con un enfoque completamente distinto, se diseñó el Mirador Las Cruces (2010), en Jalisco (México). Formando parte de la Ruta del Peregrino de 117 km, esta gran piedra hueca doblada que descansa sobre la ladera del cerro ofrece al caminante sombra, reposo y unas hermosas vistas panorámicas en la soledad del valle.
Por último, la Casa Ocho Quebradas, todavía en ejecución y situada en un acantilado de la costa de Los Vilos (Chile), rescata el espíritu primitivo de los pioneros. Esta vivienda unifamiliar de fin de semana incluye una chimenea central y una estancia principal que puede abrirse hacia el exterior. Jugando con tres volúmenes robustos, se mimetiza con un paisaje agreste, invitando a subsistir con lo mínimo.
Así pues, queda clara la importancia que otorga Aravena a los usuarios finales en sus proyectos, los auténticos ejes de sus creaciones. Un compromiso social y con el urbanismo sostenible que, sin duda, ha tenido en cuenta el jurado del Pritzker, cambiando la tendencia en ocasiones anteriores de premiar la espectacularidad o las innovaciones estéticas. Todo un acierto.
Retrato: James Duncan Davidson/TED
Fotografía Quinta Monroy: Cristobal Palma / Estudio Palma
Fotografías Proyecto Las Cruces: Iwan Baan
Fotografías Centro de Innovación UC – Anacleto Angelini: Nico Saieh
Fotografías la Casa Ocho Quebradas: Elemental















