El bungaló ideal para gozar del paraíso mexicano de Tepoztlán
El Bungalow LMM responde exactamente a la definición que de este tipo de vivienda encontramos en el diccionario: una casa pequeña de una sola planta construida en un paraje destinado al descanso.
Esta obra del estudio de arquitectura Cadaval & Solà-Morales -con oficinas en Barcelona y Ciudad de México- está situada en Tepoztlán, una pequeña localidad del estado mexicano de Morelos a tan solo 50 kilómetros de la capital del país.
El pueblo es famoso por su estupendo clima y por el legado prehispánico y colonial, reclamos que atraen a numerosos visitantes, tanto de fin de semana como de estancias más largas. Por ello, el Bungalow LMM se planteó como el primero de una serie de refugios en plena naturaleza salvaje para visitantes temporales de Tepoztlán.

La vivienda se alza sobre una pendiente con unas vistas espectaculares del valle y el bosque circundante, así que se ideó para aprovechar esas panorámicas llenas de vida y luz, elaborando espacios donde gozar de la tranquilidad del retiro. De hecho, el estudio capitaneado por Eduardo Cadaval y Clara Solà-Morales ya había construido en esa zona un área para usos comunes, con un amplio jardín y piscina, por lo que en realidad se trata de una extensión del proyecto.
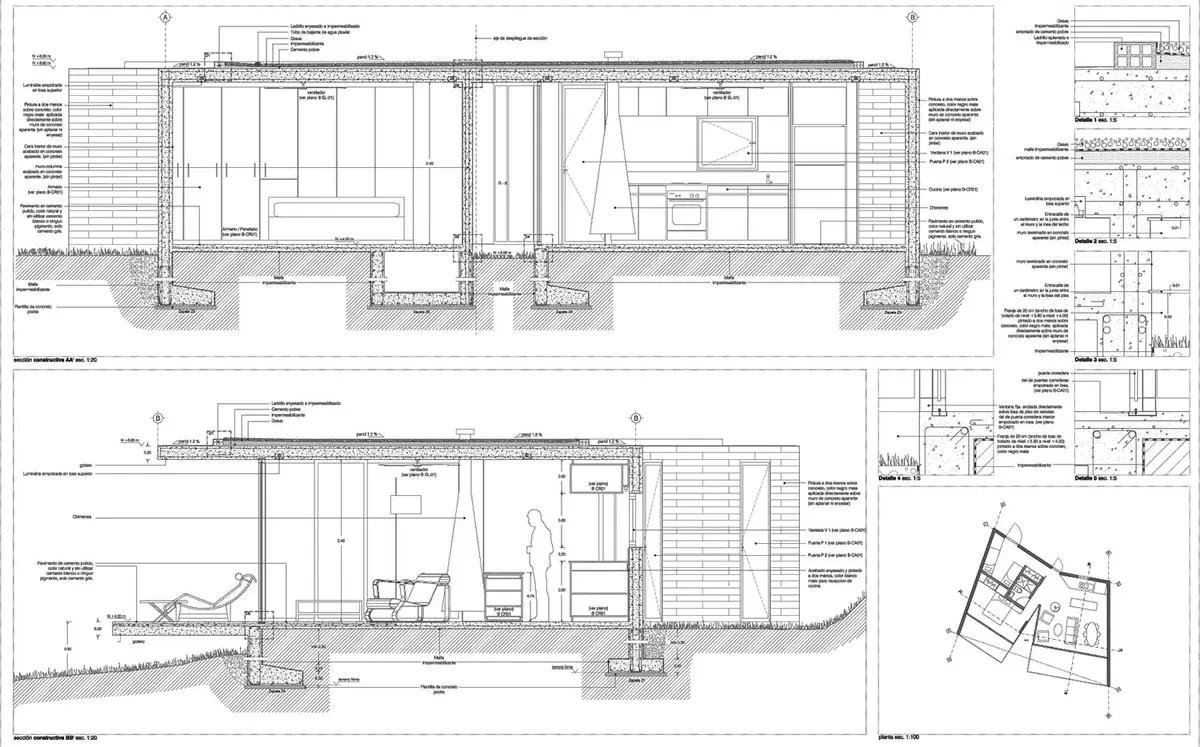
El diseño parte de una pequeña caja cerrada en los laterales, que conservarán la privacidad una vez se hayan construido los siguientes bungalós, y al mismo tiempo fraccionada y abierta hacia los lados en la zona frontal. Esta división permite separar el dormitorio principal del área común, situando la cocina y el baño en el extremo posterior, puesto que la casa se creó para ser utilizada por parejas o familias no muy numerosas.
Separadas, pues, las zonas de ocio y descanso, uno de sus grandes atractivos es la parte delantera, envuelta en cristal y resuelta en voladizo sobre la pendiente para disfrutar aún más de las vistas. A fin de asomarse directamente a esa naturaleza exuberante se crearon así dos grandes terrazas frontales a modo de miradores.
Con su aire de cabaña moderna, el Bungalow LMM se construyó con hormigón visto en interiores, un material que requiere poco mantenimiento y que se pintó de negro en el exterior buscando minimizar el impacto visual en el entorno.
La estructura minimalista resulta muy eficaz, pues crea un efecto de inmersión total en el paisaje sin sacrificar por ello la intimidad. Algo así como unos enormes prismáticos con los que contemplar la frondosidad de esta parte de México.
Fotografías: Sandra Pereznieto y Diego Berruecos.














