Dorte Mandrup crea una escultura colosal en homenaje al Mar de Wadden
El Mar de Wadden es el mayor parque nacional de Dinamarca. Situado en el suroeste del país, su paisaje de dunas, pantanos y brezos conforma una biosfera única. Con una franja costera de 500 km –que se prolonga hasta Alemania y los Países Bajos–, resulta clave para millones de aves acuáticas migratorias.
Considerado Patrimonio Mundial de la UNESCO desde 2009, este inmenso humedal se merecía sin duda un centro de interpretación acorde a su riqueza ecológica. La ciudad de Esbjerg adjudicó el proyecto al estudio danés Dorte Mandrup, que ha rendido homenaje a la artesanía local y a la grandeza de las marismas con un edificio-escultura rematado por un enorme tejado de paja.
Inspirados en las granjas rurales de Jutlandia, este material recubre techos y fachadas, aunando solidez estética y desarrollo sostenible, además de proporcionar un aislamiento térmico y acústico óptimo. A su vez, la audaz ruptura de la horizontalidad en las fachadas pretende ser un eco de la continua variación del paisaje, con su ir y venir de mareas.
La integración con el entorno es completa, pues la nueva estructura casi parece brotar de la tierra. Su perfil geométrico evoca la perspectiva lineal del mar de Wadden y la llanura que se extiende frente a él. El programa incorpora las antiguas instalaciones del centro de visitantes, que se habían quedado pequeñas por la masiva afluencia de amantes de la ornitología.
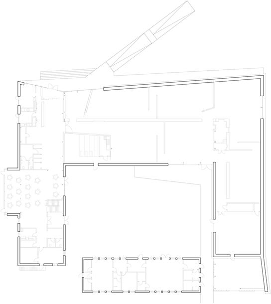
El edificio principal en forma de U alberga la zona de restauración en uno de sus brazos, quedando el resto como área de exposición dividida en siete salas interconectadas. Un edificio dedicado a talleres educativos cierra casi por completo la U, generando un patio interior protegido del viento que recrea la tundra nativa. Paralela a este bloque, un ala nueva conectada mediante una pasarela de madera refuerza el espacio de aprendizaje.
El antiguo centro se funde con el nuevo gracias a una piel de listones de robinia, solo interrumpida por generosos muros panorámicos de cristal. Sin embargo, el colosal entramado de cañas es la seña de identidad del proyecto. Para crear sus afilados biseles hubo que recurrir a técnicas de aplicación especiales, y la magnitud de las superficies hizo precisa la intervención conjunta de tres empresas locales. Con el tiempo, una capa de musgo conquistará esa gruesa cubierta, poniendo su particular nota de color sobre los bancos de arena.














