DENTISTA CON VISTAS
De Shift Architecture Urbanism, en Best (Sur de Holanda).
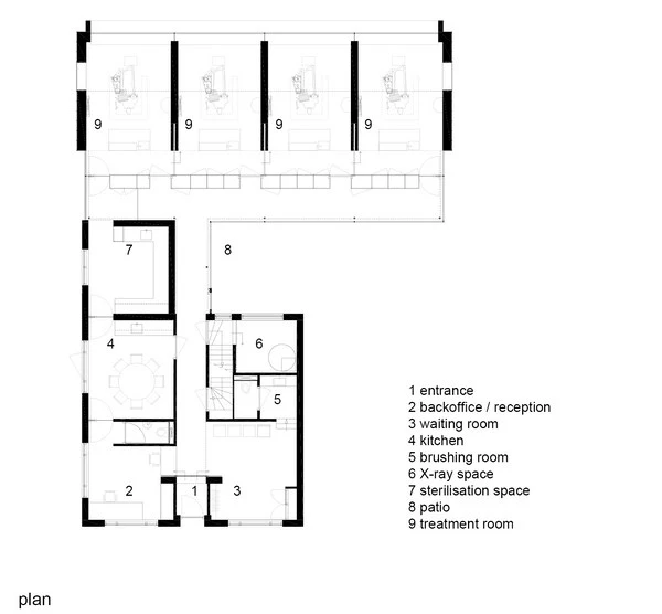
El objetivo fue transformar y extender un edificio histórico del centro de Best para convertirlo en un consultorio dental con 4 consultas. El reto fue cómo ligar la nueva extensión con la arquitectura existente y cómo aprovechar la belleza del jardín exterior.
Las 4 nuevas consultas se ubican en un nuevo volumen que se mimetiza pero contrasta con la vivienda existente; su forma imita la inclinación del tejado original aunque en un material totalmente diferente: el cinc. Este diseño es un nuevo punto de referencia arquitectónico y expresa su nueva función como edificio abierto al pueblo. Cada consulta es como una casita en miniatura, con unas magníficas vistas al jardín, conectando el interior con el exterior, y contribuyendo a relajar a pacientes y empleados. Las funciones secundarias del consultorio dental -sala de espera, sala de reuniones, cocina de empleados, oficina- se concentran en la vivienda antigua -de los años ’30- cuya estructura se ha mantenido intacta.



