Courtyard House, un vergel para desconectar del ajetreo de Singapur
La arquitectura asiática contemporánea está recuperando valores ancestrales muy sugerentes e inspiradores para una mirada occidental. Buena muestra de ello es la Courtyard House, un edificio residencial situado en el área oriental de Singapur.
Obra del estudio local Formwerkz Architects, creado en 2004, hace gala de los valores que suelen revelar sus trabajos: fortalecer las relaciones humanas e impulsar la recuperación del diálogo del hombre con la naturaleza.
La construcción, muy espaciosa, se organiza en tres amplios niveles a pesar de tratarse de una sola vivienda. Esta distribución responde al deseo del cliente de acoger en un único edificio a varias generaciones de su familia para llevar una vida en común.
El objetivo era crear un espacio privado, alejado de las miradas de la vecindad. No hay que olvidar que la privacidad es muy apreciada en un país cuya densidad de población ronda ya los 8.000 habitantes por km2.
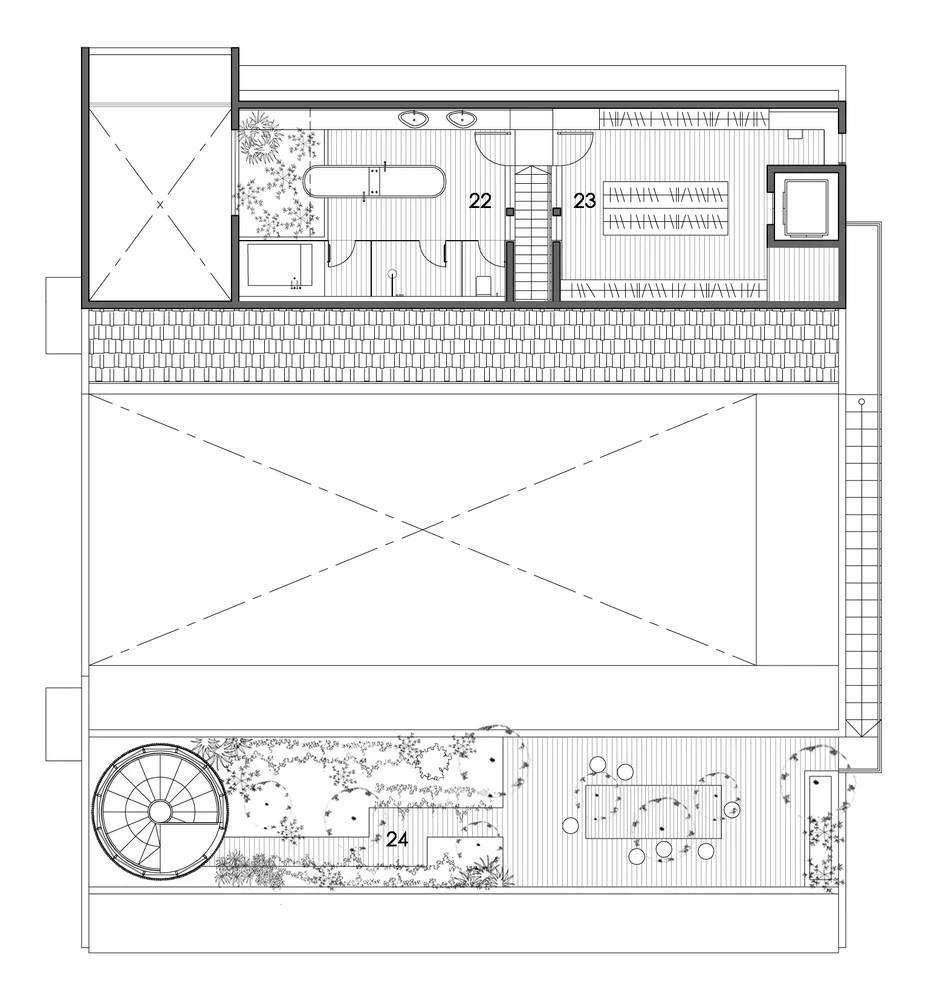
Con esta premisa, Alan Tay y su equipo diseñaron una casa-patio que rememora la organización interna de las viviendas típicas de muchas regiones del norte de China, pero adaptada a los tiempos modernos. Así, el patio al aire libre, que incluye una piscina, sirve para disponer a su alrededor cada uno de los espacios y como lugar de encuentro. Incluye en uno de sus extremos un muro de hormigón perforado que favorece la ventilación, decora y protege del sol.
Todas las habitaciones de los dos bloques superiores se abren al patio central y a su zona arbolada, mientras que en el otro extremo la privacidad queda garantizada mediante celosías y un extenso jardín tropical exterior. La amplitud de los espacios y la armonía presente en cada nivel hacen olvidar la masificación de la periferia.
Son muchos los elementos a destacar en esta Courtyard House, como la elegante escalera de caracol que da acceso a ambas plantas, el acierto en las combinaciones de madera, cristal y hormigón en todo el edificio, los suelos de travertino o la presencia de áreas inmersas en este bosque tropical privado, como el comedor familiar del patio. En suma. un paraíso urbano que culmina en el delicioso jardín de la última planta.















