Court House, la lectura contemporánea de una tradición india
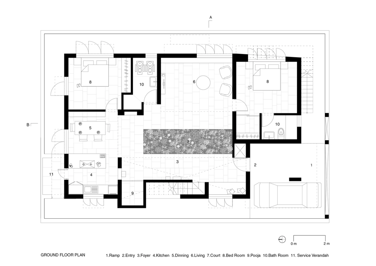
La Court House se eleva con discreción en Vandalur, un barrio situado en el suroeste de la superpoblada metrópoli de Chennai. Este proyecto del estudio local Moad (Madras Office for Architects and Designers) ofrece una versión contemporánea de la casa tradicional del sur de la India, con un patio vertebrador en su centro.
Además de aprovechar la herencia cultural de la región, los arquitectos deseaban levantar un edificio airoso y elegante, adaptando el concepto de patio interior a un contexto urbano. Es precisamente esa zona la que actúa como vehículo de transición entre la modernidad de los muros en hormigón visto y el pasado, representado por el espacio central abierto y su cubierta vegetal.
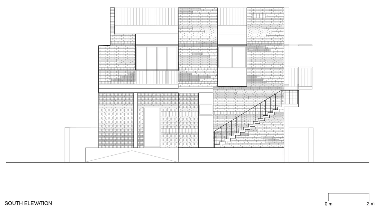
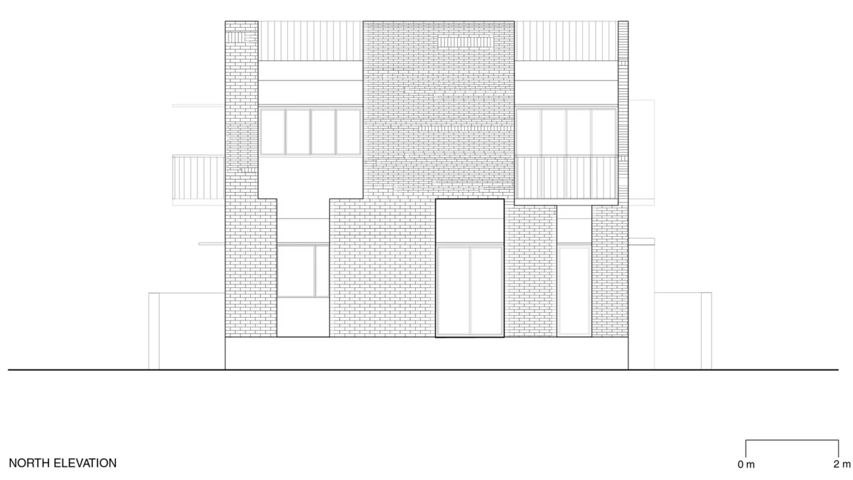
En este proceso de recuperación histórica se decidió también dar un segundo uso a ciertos materiales tras comprobar su resistencia a la compresión. Así, se emplearon ladrillos de entre 15 y 70 años, recuperados de diversas viviendas antiguas demolidas en el barrio de Mylapore para dar paso a nuevos apartamentos. Las diferencias de textura y tonalidad de cada serie de ladrillos –no colocados al azar– configuran un collage muy atractivo en el exterior. Esta idea de continuidad en el tiempo o regeneración, aunque aquí sea de modo terrenal, entronca muy bien con la religiosidad hindú.
Dentro de la Court House se apostó por un área estrecha abierta al cielo para iluminar las habitaciones. Como elemento diferenciador destaca la escalera del vestíbulo, situada sobre el tejado del primer piso y con una pendiente inusual.
Así mismo, llaman la atención los acabados sobrios, casi espartanos desde un punto de vista occidental. La iluminación y las ventanas tienen un cierto aire industrial, al igual que las paredes, mientras que en el caso de las puertas se prefirió dar una segunda vida a elementos recuperados. Para los suelos, en cambio, se decidió emplear grandes baldosas semipulidas de «mandana», un tipo especial de arenisca de color pardo rojizo muy abundante en la región. De esta forma, se vuelve a alternar tradición y modernidad.
Por su parte, el corredor vegetal delimita espacios y llena de vida la casa. Una vivienda que apuesta decididamente por las líneas rectas, los contrastes marcados y la renovación.



















