BOATHOUSE
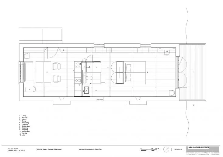
Con la habilidad de un mago, el arquitecto inglés con base en Londres, Alex Cochrane, ha convertido una caseta para barcas victoriana, con vistas sobre el parque Windsor (Great Windsor Park), en un moderno retiro para un escritor. Debido a su función, la silueta de cualquier caseta para barcas es larga y estrecha; tras demoler completamente las dos plantas del interior, se creó un espacio abierto con 3 zonas de estar interconectadas, aprovechando la estructura larga y estrecha original. Al insertar unas modernas «cajas» en el centro de la caseta, el arquitecto consigue vistas ininterrumpidas a lo largo de todo el proyecto. El resultado es un retiro de día moderno, que rinde homenaje a sus orígenes humildes con gran respeto.
Fotografías: Alex Cochrane Architects









