Centro Cultural Municipal Corpataux-Magnedens
Emplazado en una típica aldea Suiza y ubicado perpendicular a su calle principal, está el Centro Cultural Municipal Corpataux-Magnedens obra de 2b architectes, Lausanne, el cual, integrándose en la población, dota de un nuevo foco de vida pública a la misma.
La morfología de la edificación se asienta en granjas y en edificios públicos de los alrededores. Presentando una simplicidad arcaica, el techo se extiende hacia abajo y evoca un arquetipo arquitectónico a través de la reinterpretación de las siluetas conocidas
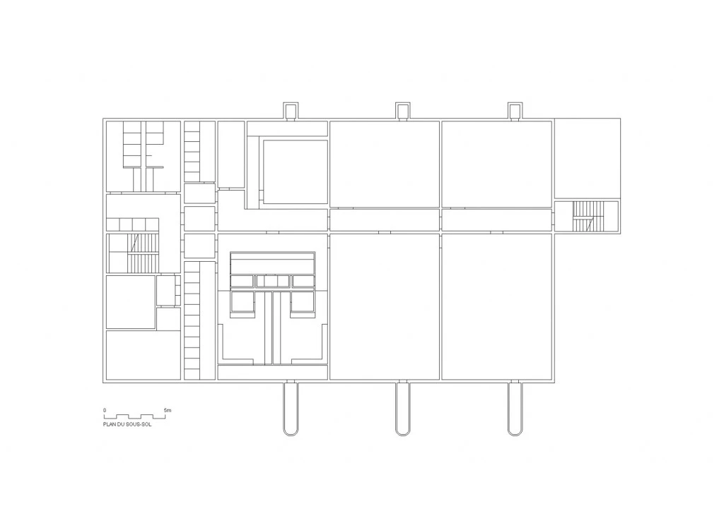
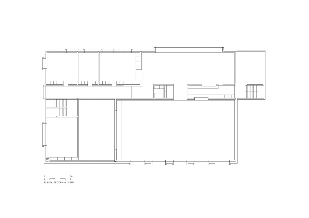
El volumen del edificio monolítico fue tratado de forma independiente de la división interna de los espacio. El interior consta de áreas densamente yuxtapuestas que está estructurado por las aberturas de la fachada.
La piedra utilizada conecta el edificio con su entorno en términos de integración contextual. Dicho material está estrechamente relacionado con la identidad del pueblo, siendo extraido allí mismo hasta la década de 1950. La referencia a la herencia cultural de la ubicación, cumple una importante tarea de anclar el nuevo centro municipal en su emplazamiento.
Mediante el uso de uniforme el material tanto para las paredes y el techo, el edificio tiene un carácter monolítico – una calma, presencia confiados de que una profunda conexión con el contexto se revela sin negar excepcional carácter del edificio, confiado como un centro cultural público.
Texto, planos y fotografías facilitados por ©2b architectes













