Casa SH de 01ARQ
El proyecto, obra de los arquitectos 01ARQ, se encuentra en una zona de colinas rodeadas por la cordillera de los Andes en el oriente de Santiago de Chile y buscó integrar el paisaje más cercano y el más lejano, evitando en lo posible el paisaje intermedio manchado por diversas construcciones.

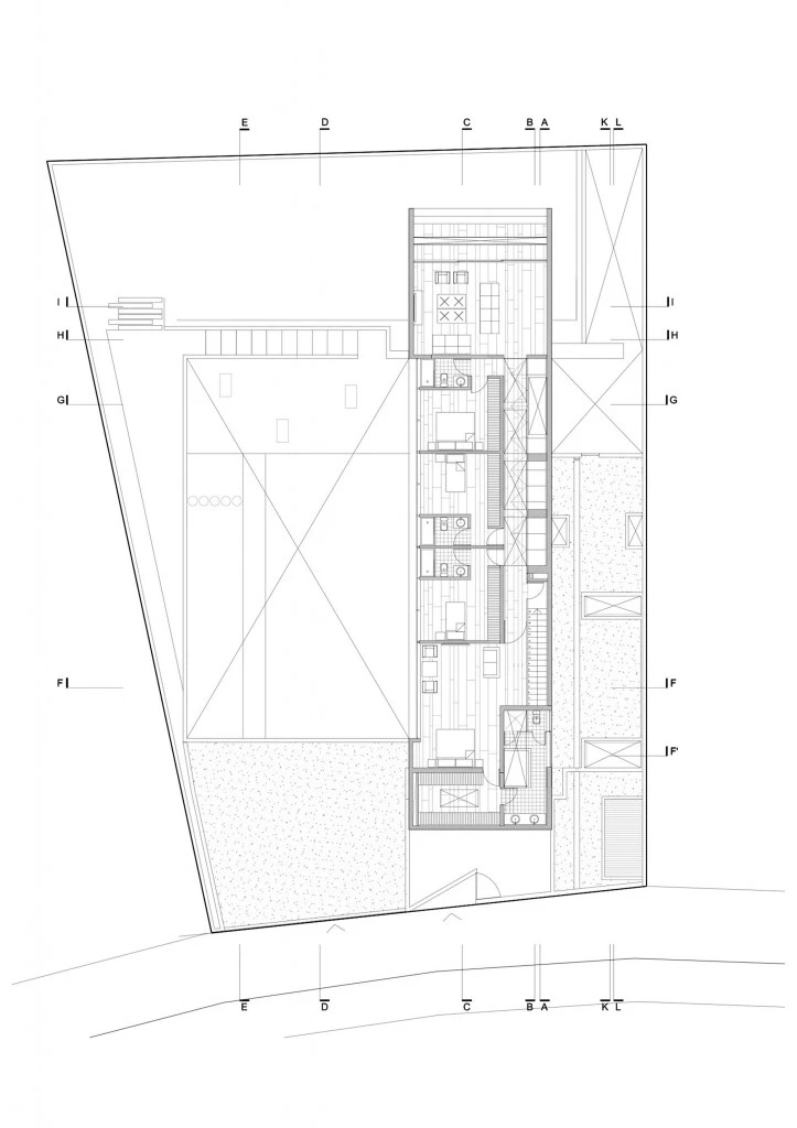
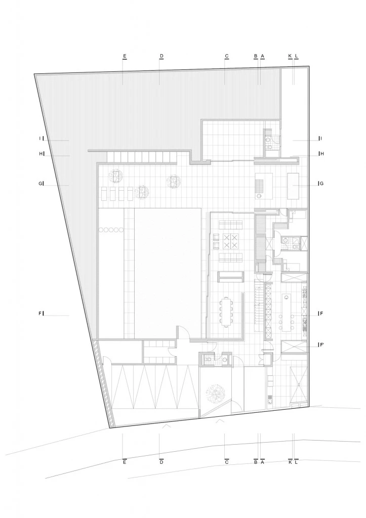
El terreno donde se levantó el proyecto presentaba un desnivel de 4.5 metros aprovechado para la creación de patios a diferentes alturas. Sobre los muros de contención que limitan el patio principal en el que se ubica la piscina, descansa el volumen de hormigón. Éste configura un pórtico en dicho patio.

En el interior del volumen se ubican las habitaciones y sala de televisión. En la parte orientada al este se encuentra el acceso al patio superior. El acceso al patio principal lo da una escalera de mármol travertino ubicada en el superior.


Bajo la pieza volada de hormigón se crea un espacio sin apoyos intermedios de 20 metros de longitud que permite vistas sin obstáculos estructurales en el living room y la sala de juegos al patio y la piscina.



La cocina está ubicada en la parte sur del terreno y está rodeada por dos patios pequeños que posibilitan la ventilación cruzada y aportan luz natural al subterráneo donde se encuentra una sala de juegos para niños.

Fotografías: Aryeh Kornfeld



