CASA PALMYRA
Proyecto de Studio Mumbai Architects.
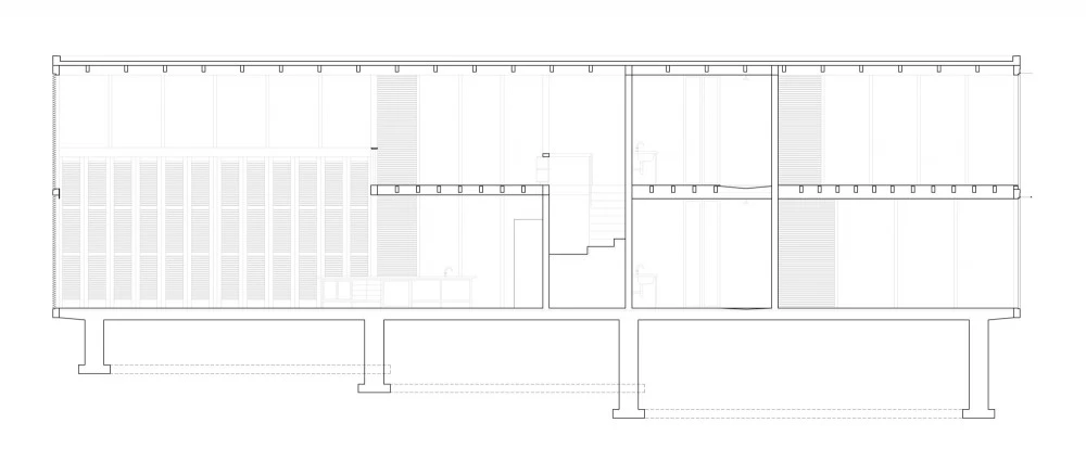
Localizada a las afueras de Mumbai, en el Mar Arábigo, la Casa Palmyra (Palmyra House) está concebida y construida como un refugio. La vivienda consiste en dos volúmenes de madera insertados en una explotación de cocoteros.

Fotografías: Studio Mumbai y Helene Binet
Planos: Studio Mumbai





![Studio Mumbai [Palmyra House] 03](https://abaton.es/despiertaymira/wp-content/uploads/2013/11/Studio-Mumbai-Palmyra-House-03.webp)






![Studio Mumbai [Palmyra House] 08](https://abaton.es/despiertaymira/wp-content/uploads/2013/11/Studio-Mumbai-Palmyra-House-08.webp)
![Studio Mumbai [Palmyra House] 05](https://abaton.es/despiertaymira/wp-content/uploads/2013/11/Studio-Mumbai-Palmyra-House-05.webp)

![Studio Mumbai [Palmyra House] 04](https://abaton.es/despiertaymira/wp-content/uploads/2013/11/Studio-Mumbai-Palmyra-House-04.webp)







