Casa L, una arquitectura eficaz al servicio del paisaje
Los proyectos de construcción en parajes naturales tienden a ser mínimamente invasivos. De hecho, es frecuente incluir parte de ese paisaje en la distribución interior de la vivienda. Es lo que ocurre en la Casa L, ubicada al oeste de Ciudad de México, donde se respetó buena parte del arbolado de gran altura para crear un estupendo retiro de fin de semana.
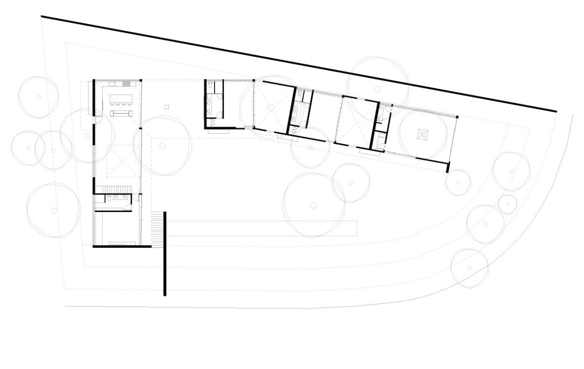
El estudio Dellekamp Arquitectos planteó el diseño de dos volúmenes independientes con una amplia terraza cubierta como punto de unión. El bloque paralelo a la inclinación de la ladera se reservó para los propietarios, mientras que el volumen destinado a los invitados se extiende casi perpendicular a la pendiente. Es este último el que integra varios árboles, instalándose uno de ellos en el mismo centro de la sala de estar, toda una osadía visual.
Esta distribución de la vivienda en forma de L garantiza una independencia total tanto a los invitados como a los dueños, disponiendo ambos de muchos espacios para la convivencia en la parte exterior.
Hay que subrayar también el uso de los patios en el volumen más largo del programa. En lugar de idear áreas cerradas, la propia vegetación del entorno los permea, consiguiendo así «una casa en el patio» y no a la inversa. Además, se dejaron sin techo a propósito con la intención de evocar ruinas tomadas por la flora local. Como estas zonas abiertas separan cada una de las tres habitaciones, un pasillo perimetral cubierto las conecta, del mismo modo que el deambulatorio de un claustro.
En realidad, el equipo de Derek Dellekamp apostó por la apertura total de la vivienda hacia el jardín y el bosque circundante a través de puertas-ventana –presentes en todas las estancias– enmarcando así también las vistas al lago de Valle de Bravo.
Como nexo sutil, la terraza cubierta es el núcleo de las interacciones e invita al descanso, pues es lo primero que ven los recién llegados que acceden a la casa por la escalera central. Una lámina de agua sirve para delimitar el jardín, contribuyendo a potenciar la sensación de paz y de unión con la naturaleza.













