Casa Krampon
Proyecto de Shogo Aratani Architec & Associates en Hyogo (Japón). Vivienda familiar ubicada en una zona residencial donde, afortunadamente, la naturaleza se conserva intacta, en una parcela con pendiente, en medio de un bosque. En la parte superior del terreno hay un árbol de alcanfor y un cerezo que se integran en el diseño del proyecto.
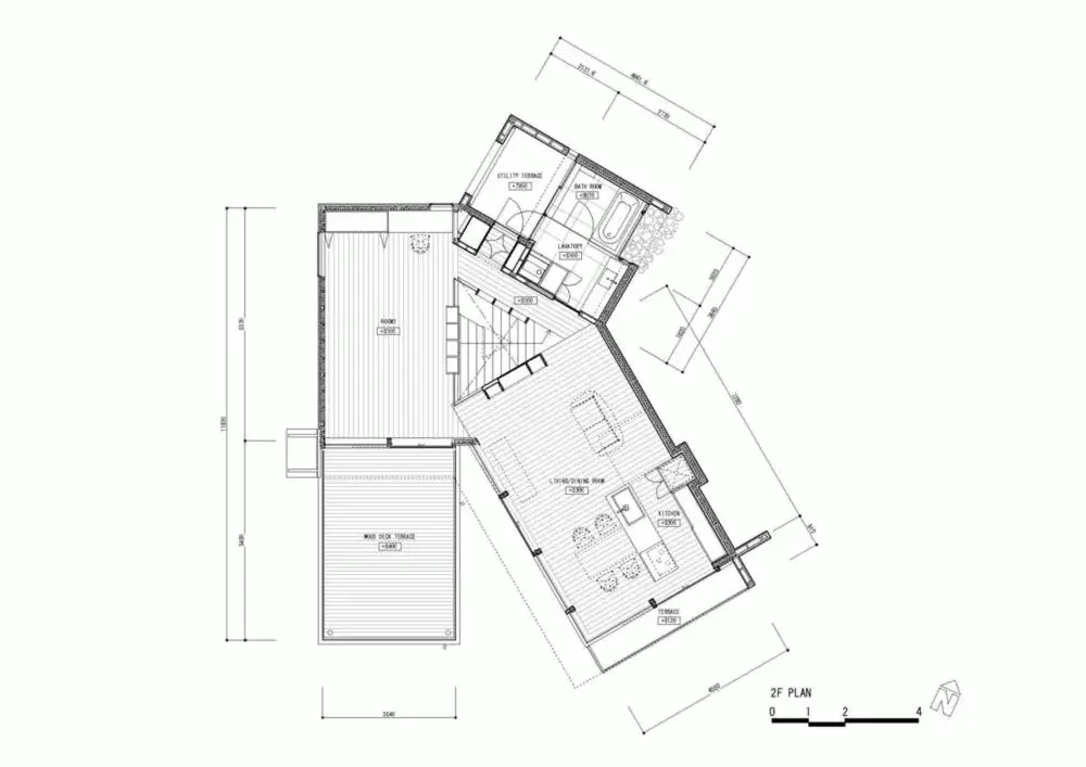
La pendiente del terreno tiene un desnivel de 11 metros y la tierra se compone de roca dura, por lo que se decidió colocar volúmenes a lo largo de la pendiente para minimizar la excavación. Para proporcionar las mejores vistas a los espacios principales de la planta superior se conectaron los espacios interiores a lo largo de la pendiente, hasta el nivel de la calle. El volúmen superior se sitúa justo debajo de los dos grandes árboles y se colocó un tragaluz en la sala de estar para poder contemplarlos.
Otro volúmen al norte se destinó a zona de baño y el inferior, contiene las zonas privadas en la primera planta, y una terraza de madera, accesible desde la sala de estar, en la cubierta. Las escaleras se diseñaron con idéntica pendiente al terreno en la intersección de los tres volúmenes; además, el hueco de la escalera sirve como biblioteca y está diseñado para almacenar gran cantidad de libros.
Fotografías Yutaka Kinumaki















