Casa Fanego: arquitectura de arcilla en la capital paraguaya
Cuando un arquitecto proyecta su propia residencia tiende a realizar un edificio de autor donde, además de colmar sus necesidades prácticas, se reflejen sus ideas estéticas y los conocimientos del oficio. Es el caso del paraguayo Sergio Fanego, que planeó su casa de Asunción en colaboración con el estudio Gabinete de Arquitectura -capitaneado por su compatriota Solano Benítez-, en el que había estado aprendiendo y trabajando muchos años.
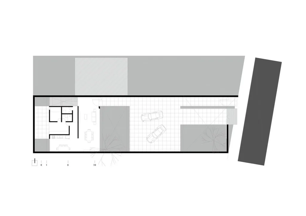
Esta complicidad ayudó a ir resolviendo todos los retos que planteaba la construcción. El primero era su ubicación. Una parcela estrecha y profunda de 10,80 x 37,30 metros justo al lado de un edificio de 12 plantas en la zona residencial de Villa Aurelia donde, en teoría, solo estaban permitidas 3 alturas.
Para eludir esta invasión visual en el área delpatio, se unió al lindero ciego el espacio social y de servicios, acercándolo a la parte posterior de la parcela. Además, la zona de dormitorios se adelantó en voladizo, con lo que se generó un patio intermedio con la medida justa para garantizar la privacidad. A su vez, se obtuvo una zona interior de sombra, algo muy valorado en la región para mitigar las altas temperaturas.
La suspensión de esta parte de la casa se realizó mediante dos vigas Vierendeel, que se apoyan en los linderos a través de ménsulas y rótulas. A este esquema de bloques bien definidos se añade el uso extensivo del ladrillo en toda la obra. Las estructuras, el suelo, los techos, los paneles móviles para aireación y hasta las mismas escaleras son de este material tradicional.
Solo rompen esta ubicuidad las pequeñas zonas acristaladas colocadas en puntos estratégicos a lo largo de la vivienda. Todas ellas aportan una luminosidad no invasiva adaptada al peculiar clima subtropical de la capital paraguaya a fin de hacer más agradable el día a día. La combinación de vidrio y arcilla resulta particularmente atractiva en las ventanas abatibles.
Así pues, la Casa Fanego aporta continuidad y flexibilidad espacial, jugando con la luz, la ventilación y las distintas escalas. Algo potenciado por un paisajismo sutil pero efectivo.












