CASA EN LA PLAYA
Proyecto de en la región de Buenos Aires (Argentina).
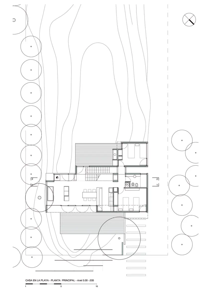
El terreno sobre el que debíamos intervenir se encuentra a escasos metros del médano que pone límite a la playa aunque con una casa lindera de gran tamaño que obstruye en parte las vistas al mar. El resto están libres de edificaciones cercanas y permiten el disfrute de una vegetación baja, de acacias y tamarindos, por la que se asoma el mar por un lado y se insinúa el bosque por el otro El terreno posee la particularidad de presentar en el centro y en toda su longitud, a manera de cresta, una elevación de casi 3 metros respecto de sus laterales. Esta singularidad y la necesidad de elevar la edificación por encima de la cota natural del lote para tener vistas al mar, fueron determinantes en el proyecto.
Los clientes -un matrimonio joven con tres hijos pequeños- acostumbrados a recibir huéspedes, llegaron al estudio requiriendo una vivienda de hormigón por su escaso mantenimiento y por el estilo del estudio. Necesitaban una vivienda grande de 5 o 6 dormitorios, con espacios generosos de reunión pero para construir en etapas. Dado que la ordenanza vigente entonces lo permitía, propusimos construir 2 unidades independientes: la casa principal de dimensiones que permitiera llevarla a cabo en una sola etaba y la casa de huéspedes, para completarse más adelante.Conformes con esta propuesta y con la solución estético constructiva del estudio para otros proyectos en el bosque de esa zona de playa, los clientes sólo requirieron que se aprovechara al máximo la proximidad a la playa para que los ambientes principales disfrutaran de vistas al mar. La casa principal consistió en un dormitorio principal con baño privado, dos dormitorios para los niños con un baño a compartir y una habitación de servicio/invitados con baño incoroporado. Además, salón, comedor y cocina integrados y parrilla y terrazas, garaje semi-cubierto y casa de máquinas.
El estudio se centró en la búsqueda de soluciones intentando conseguir acoplar el proyecto a la topografía, buscando las vistas al mar sin realizar importantes modificaciones al médano. En cuanto al barrido del sol y los vientos dominantes, la vivienda tendría que abrirse hacia la fachada orientada al NE, controlando la apertura al fondo -orientado al SO y expuesto a fuertes vientos-. La fachada lateral (SE) a pesar de estar sometida a lluvia y fuertes vientos cuenta con grandes paños de vidrio para observar el mar. Tras el estudio pormenorizado se decidió colocar la planta principal como un prisma instalado perpendicularmente a la cresta del médano En relación con el barrido del sol y los vientos dominantes la vivienda debería abrirse hacia el frente orientado al NE y controlar sus aberturas hacia el fondo, orientado al SO y expuesto a fuertes vientos. La fachada lateral, hacia el SE, a pesar de estar sometida a la lluvia y también al viento, debía contar con importantes paños de vidrio para poder ver el mar. Con estas premisas y trabajando sobre el corte transversal del terreno, se colocó la planta principal de la casa como un prisma perpendicularmente sobre la cresta del médano, creando una planta de acceso casi a nivel de calle y en la misma ubicación, y por encima de este prisma, contar con otra planta que albergara el dormitiorio principal, el baño prinicpal y una gran terraza con vistas generosas al entorno, además de vistas al mar en el prisma inicial. La escalera que organiza los tres niveles se transformó en protagonista por su ubicación estratégica y su estudiado tratamiento espacial, con especial énfasis en la entrada de luz y las vistas que se generan en su recorrido. En cuanto al paisaje y de acuerdo con el criterio adoptado de mínima intervención, consistió en unos muros de contención para aguantar el médano y permitir la regeneración de los pastizales del lugar.
En cuanto al mobiliario, ha sido diseñado por el estudio como una combinación de equipamiento fijo en hormigón y muebles móviles de madera recuperada de pino canadiense proveniente de cajones de embalaje de motores. Son de hormigón: la mesa (resuelta como una losa unida al tabique que separa el comedor y la cocina), los planos de apoyo del estar, la leñera, y todos los armarios de los dormitorios.
Fotografías Guillerme Morelli






































