CASA DE VERANO LAGNO
Proyecto del estudio de arquitectos Tham & Videgard, Estocolmo (Suecia).
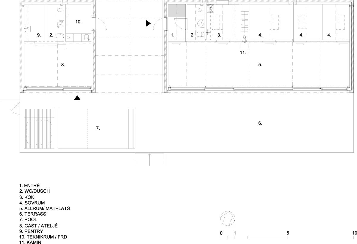
Los volúmenes a base de moldes de hormigón, hechos in situ, se asemejan a las casetas para barcas, caracterizadas por una sucesión de cubiertas a dos aguas. El efecto plisado crea una secuencia de cubiertas a diferentes alturas abriendo la posibilidad de una zona de estar diáfana. Las vistas sobre el agua se integran en el interior blanco y gris a base de una sucesión continuada de vidrios; el mar y el cielo también hacen acto de presencia con muros de puertas correderas en las fachadas más pequeñas que dan al norte. Esta arquitectura se «informa» gracias a la paleta de materiales que la rodea, con un peso y color que conectan la forma con la base de granito que la envuelve.
Imágenes: Åke E:son lindman
Planos: Tham & Videgard










