Cambiar de aires
En la ciudad costera vietnamita de Da Nang se ha construido esta ingeniosa “casa-termitero”, inspirada en las construcciones de estos insectos, comunes en la zona y conocidas por sus innumerables canales de comunicación y ventilación.
Las drásticas variaciones del clima local a lo largo del año, con grandes oscilaciones de calor y humedad, han hecho del control de la temperatura y la ventilación un asunto prioritario en el proyecto.
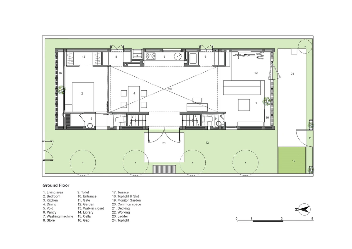
Las fachadas frontal y trasera a ambos extremos de la vivienda se componen de muros perforados de ladrillo horneado tras los que se instalan ventanas correderas de vidrio, permitiendo un eficaz ensombrecimiento y ventilación cruzada de la casa a la vez que interesantes juegos lumínicos diurnos y nocturnos. Los alzados laterales son muros de cerramiento en ladrillo que se integran perfectamente con el conjunto y con el ladrillo visto del interior.
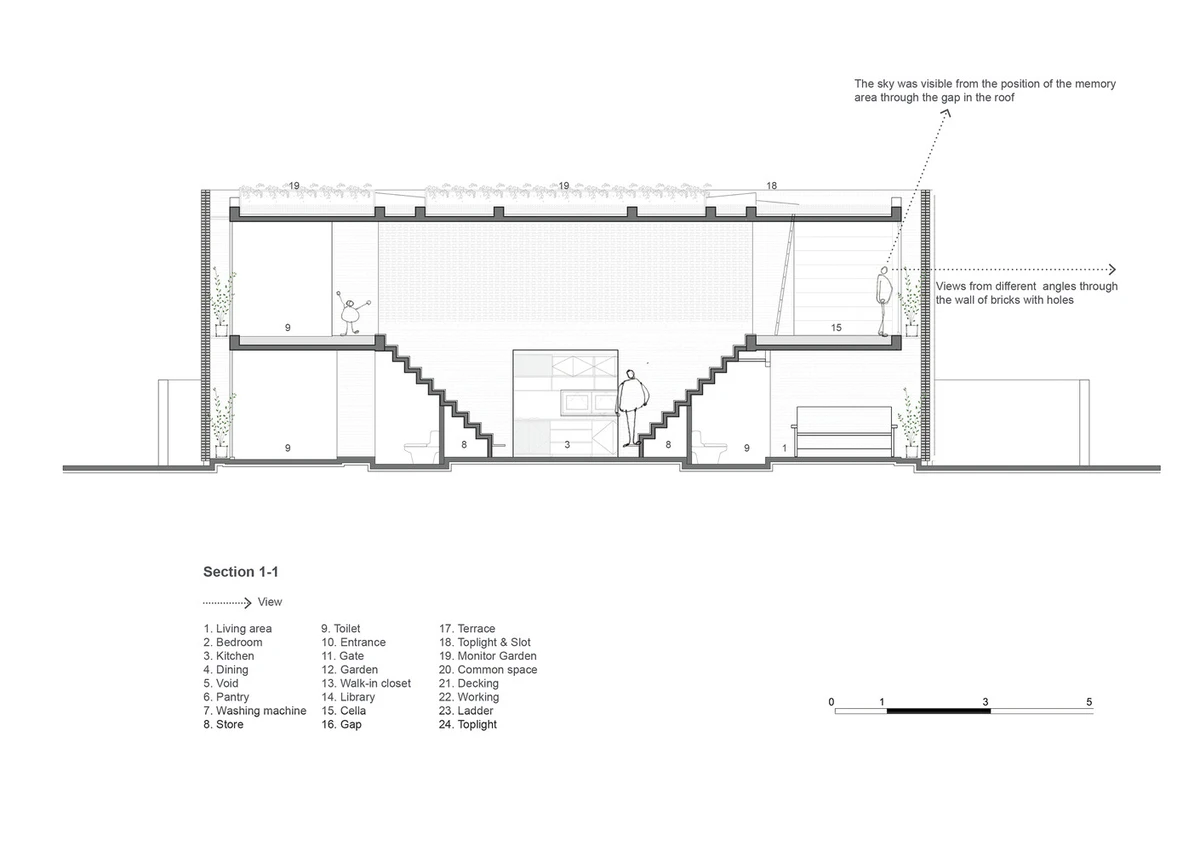
La casa goza de una planta baja casi totalmente diáfana, con un generoso recibidor, una sala de estar y una amplia zona común de doble altura con cocina abierta. Este espacio, rodeado de muros perforados de ladrillo a la altura del primer piso y rebosante de luz cenital, replica las fachadas en el interior de la casa y es el núcleo del proyecto. Una simple cortina separa esta zona común de un dormitorio, pudiendo exponerse toda la profundidad de la planta cuando la cortina está corrida.
A su vez, el primer piso contiene un dormitorio adicional con baño, una pequeña biblioteca, un segundo aseo, un espacio de almacén y otra zona de estar por la que se puede acceder a una azotea ajardinada. Los espacios resultantes son de gran calidad y limpieza, lográndose una plena continuidad entre el exterior y el interior de la vivienda.
Con todo, el proyecto reviste algún que otro aspecto mejorable, como su planta, que podría haberse resuelto de otra manera. Y es que, construir dos tramos distintos de escalera para llegar al primer piso de un edificio tan pequeño no resulta muy económico. En este caso, ello implica dividir el primer piso en dos áreas incomunicadas a esa misma cota. Es decir, que para pasar de la habitación a la biblioteca o viceversa hay que bajar de nuevo a la planta baja y volver a subir por la escalera opuesta.
Difícil obviar aquí la alternativa de un solo tramo de escalera y un pasillo estrecho en el primer piso uniendo ambas zonas. Además de comunicar toda la primera planta y liberar más espacio en la planta baja (por ejemplo, para cambiar la actual entrada al aseo), ello hubiera permitido facilitar el acceso a la azotea con otro tramo idéntico de escalera en lugar de la escalera plegable por la que ahora se sube a esa terraza.
Bien es cierto que ello hubiera reducido en algo las proporciones del gran vacío central de la casa. Pero no tendría por qué haber reducido la luz del interior, ni el bello efecto de las celosías de ladrillo. Si acaso, solo hubiera hecho falta agrandar un poco más los lucernarios. En fin, sus razones habrá.
Arquitectos: Nguyen Hai Long, Phan Quang Vinh, Tran Thi Ngu Ngon, Trinh Thanh Tu



























