Cabañas diminutas en las montañas de Colorado
Un equipo de estudiantes de arquitectura de la Universidad de Colorado en Denver ha diseñado y construido una serie de cabañas en pleno corazón de las Montañas Rocosas.


Son 14 viviendas rústicas de madera y metal creadas como alojamientos para la escuela de actividades al aire libre Colorado Outward Bound, una organización sin ánimo de lucro que utiliza la educación en entornos naturales para potenciar la autoestima y las habilidades de liderazgo.


El proyecto -a levantar en medio de un frondoso pinar cerca de la localidad de Leadville- tenía como requisitos un bajo impacto ambiental, un diseño sencillo pero funcional, un mantenimiento fácil y un plazo de ejecución para el montaje de solo tres semanas.


Al tener que asentarse en una colina empinada, las cabañas se elevaron varios centímetros del suelo sobre una plataforma y cada una de ellas fue concebida como suma de dos elementos separados: un «marco» y una «caja».

El marco hace referencia a la estructura de acero que soporta la cabaña en sí, con sus finas columnas, su porche cubierto de madera y un tejado inclinado a modo de toldo en metal corrugado para mantener la nieve fuera del recinto. Aquí hay espacios también para colocar los equipos de aventura: piolets, crampones, esquís, kayaks, bicicletas…

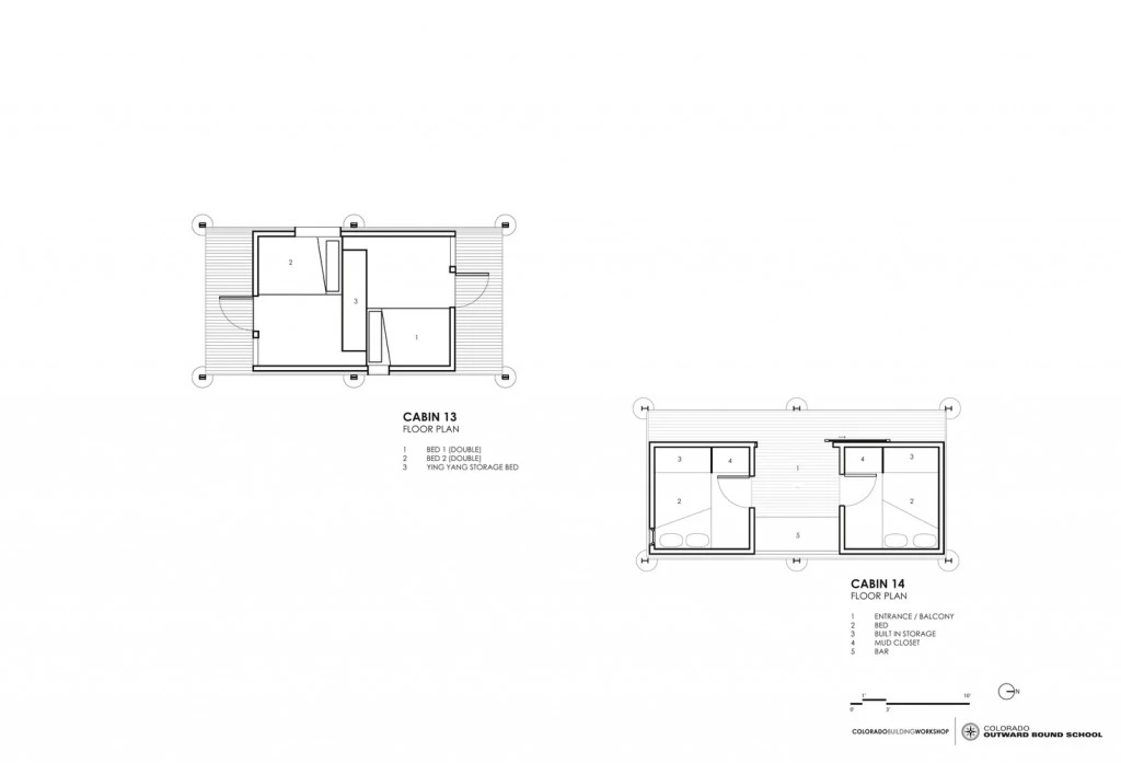
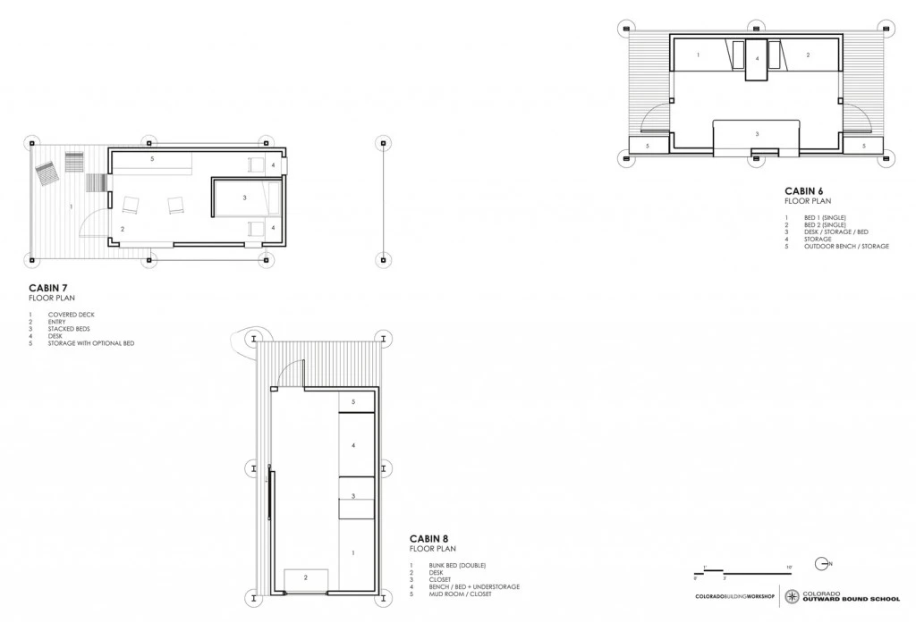
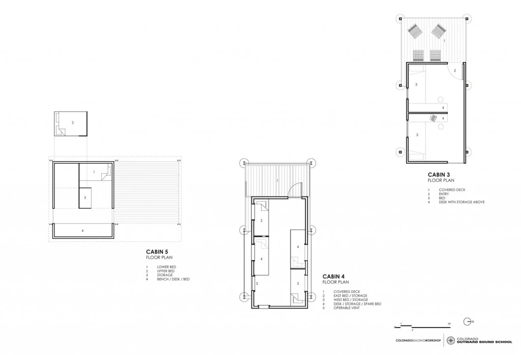
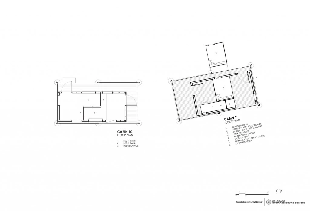
Por su parte, la zona habitable o caja está revestida de acero laminado en caliente, un material resistente que requiere poco mantenimiento. Todas las cabañas tienen de 13 a 18 metros cuadrados y poseen abundantes ventanales para estar siempre conectados con la naturaleza exterior. Este acristalamiento sin montantes proporciona una integración perfecta con el bosque y unas vistas sensacionales de las montañas.


Con capacidad para dos o tres ocupantes, el interior de estos dormitorios está forrado en madera y cuenta con camas plegables, escritorios y mucho espacio de almacenamiento, todo ello elaborado en contrachapado de abedul, que aporta calidez. Para acortar el tiempo de construcción, tanto las paredes como los elementos de madera se prefabricaron en Denver.




Las 14 cabañas se dispusieron en torno al camino de acceso de tal forma que ninguna de ellas bloquea las vistas al resto. Además, se fueron escalonando a cierta distancia unas de otras para fundirse con el paisaje, pero sin perder en ningún momento la cohesión del conjunto, quedando así una extensa zona interior para las actividades en común del grupo. Creatividad
Fotografías Jesse Kuroiwa



