Bundanon Art Museum & Bridge: arquitectura que respira paisaje
El Bundanon Art Museum & Bridge, diseñado por Kerstin Thompson Architects, se alza en la propiedad de más de 1.000 hectáreas donada por los artistas Arthur y Yvonne Boyd en New South Wales, Australia.
Bundanon no es solo un museo: es un centro cultural para las artes, la educación y el diálogo con la naturaleza.
La nueva intervención comprende dos arquitecturas principales: un museo soterrado empotrado en la ladera y un “puente” que cruza un barranco reconfigurado. Esta dualidad responde a condicionantes extremos del entorno: riesgo frente al fuego, inundaciones y cambio climático.
Estrategia del museo: refugio y estabilidad térmica
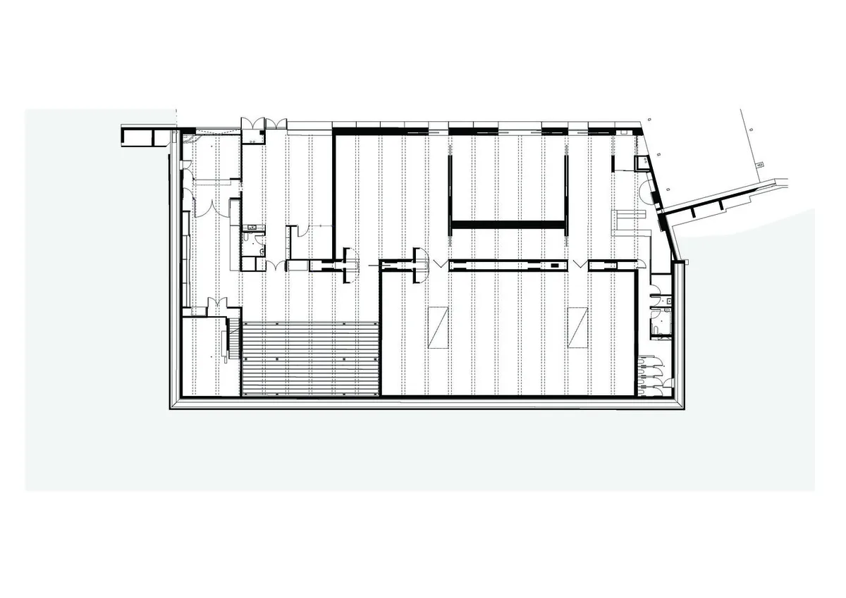
El museo se ha diseñado como una arquitectura resistente al fuego, en gran parte enterrada bajo una loma restituida. El efecto es doble: oculta el volumen y asegura condiciones climáticas estables para albergar la colección artística.
La tierra excavada se reutiliza para conformar ese montículo que protege y modula los flujos térmicos.
Al interior, las salas de exposiciones utilizan lucernarios profundos y ventanales cuidadosamente dimensionados para equilibrar luz natural y control ambiental. Las zonas de depósito de obras —que requieren condiciones más estables— permanecen en la parte más protegida, limitando las oscilaciones térmicas.
El puente: arquitectura e infraestructura simultáneas
El segundo componente es un puente de 165 metros de longitud por 9 metros de ancho, suspendido sobre el gully reinstaurado.
No es solo estructura de paso: alberga 32 dormitorios, aulas creativas, zonas de restauración y espacios públicos.
La concepción del puente toma inspiración en los puentes de vigas (trestle bridges) del paisaje australiano inundable. Se ha diseñado para permitir que el agua fluya bajo él en momentos de crecida, actuando más como infraestructura que como obstáculo.
La estructura metálica se apoye con tacto en el terreno: ligeros apoyos que minimizan el impacto y permiten la continuidad visual del paisaje. En su envolvente, se emplea acero oscuro y paneles metálicos corrugados que dialogan con la vegetación circundante.
Clima, sostenibilidad y experiencia ambiental
La propuesta sustenta un objetivo de net zero energy (energía neta cero) mediante el uso de energía solar, ventilación natural y sistemas pasivos. Las alas del edificio que no requieren clima controlado operan con ventilación cruzada y aperturas regulables con lamas de madera.
El visitante experimenta contrastes: la frescura del museo enterrado y la exposición —con matices— del puente que se airea al exterior. Esta experiencia de transición entre resguardo y apertura responde a la intención de conectar arte, lugar y conciencia del clima.
Bundanon como arquitectura de equilibrio
Bundanon Art Museum & Bridge es un proyecto que no busca imponerse al paisaje, sino plegarse a él. Su dualidad —subterráneo y elevado— responde con sensibilidad técnica a condiciones extremas. Su valor no radica en un gesto espectacular, sino en un cuidadoso ejercicio de integración, protección y apertura. En ese equilibrio reside su potencia: una arquitectura que protege, invita y educa sin estridencias.




























