Bloques de tierra comprimida: una nueva forma de construir
La sostenibilidad y el cuidado de nuestro planeta es una cuestión cada vez más latente, especialmente en el ámbito de la arquitectura y la construcción. Las técnicas avanzan y proponen un modelo con soluciones que nos acercan cada vez más a nuestro pasado, con una mirada distinta. Peris + Toral Architects ha completado un complejo de 43 viviendas sociales en Ibiza con una estructura única y eficiente: muros paralelos hechos de bloques de tierra comprimida.

VIVIENDAS BIOCLIMÁTICAS
Bajo el punto de vista de Peris + Toral Architects, la utilización de menos material, supone una menor emisión de carbono, menores costes y mejores construcciones. Y este concepto es el que ha sustentado el proyecto.

La intención residía en diseñar un edificio de bajo coste que ejerciera de extensión del terreno, adaptándose con formas complejas y dentadas a semejanza del terreno rocoso. Como corazón del proyecto, hacer viviendas bioclimáticas con calefacción y refrigeración pasiva. Este último punto fue el que definió el material estructural, con la necesidad de una alta masa térmica, como la tierra.

CONSTRUCCIÓN CON TIERRA COMPRIMIDA
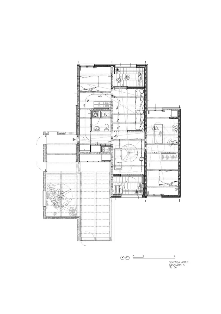
El sistema implementado se compone de muros de carga ensamblados con bloques de tierra comprimida de 20 cetímetros de espesor. Su distribución lineal permite secuenciar los espacios y combinarlos para crear viviendas de uno, dos y tres dormitorios.



Su diseño y distribución son excepcionalmente eficientes al eliminar pasillos, por lo que se ahorra espacio para la circulación, y al permitir la ventilación cruzada total en toda la unidad gracias a puertas de gran formato.



Esta idea, a pesar de resultar innovadora, desciende de la utilización histórica de la tierra en construcción por su capacidad de proporcionar inercia contra las variaciones térmicas. La tierra puede agregarse a las mezclas para usar en moldes y comprimirse para funcionar como material estructural, y eso es lo que ha hecho Peris + Toral Architects, con el resultado de unas viviendas de diseño moderno y acogedor que se nutren de los conocimientos del pasado.












Mira Sardenia 356: innovación arquitectónica en Barcelona, una nueva manera de concebir los edificios.