A tiro fijo
Hay principios que nunca fallan, como los que evidencian muchos de los proyectos del estudio MK27, del brasileño Marcio Kogan, y que demuestran la persistente validez de los parámetros funcionalistas más clásicos. Así ocurre en su Casa Blanca, en Sāo Sebastiāo, una elocuente cita de los cinco puntos corbusianos combinada con la neutralidad y polivalencia de un contenedor.
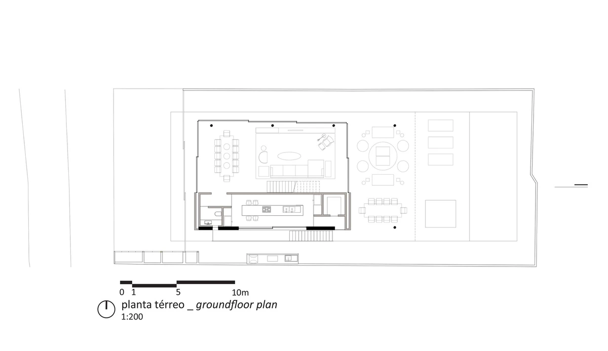
La estructura de pilotis crea en esta casa una planta totalmente diáfana en sus zonas de estar mientras que la cocina y el dormitorio de servicio y baño quedan envueltos en densos muros de hormigón que en parte también cumplen funciones de carga.
Los forjados del primer piso parecen flotar sobre los límites del salón, y una serie de pantallas correderas de vidrio permiten abrir enteramente la planta baja a la densa vegetación de la parcela, a una terraza exterior y a la piscina.
El toque lúdico a esta máquina para habitar los trópicos son unas celosías de madera que rodean la planta baja de suelo a techo y que pivotan sobre un punto fijo para ofrecer ventilación y privacidad según se elija, creando distintos efectos lumínicos y visuales que se funden muy bien con el contexto.
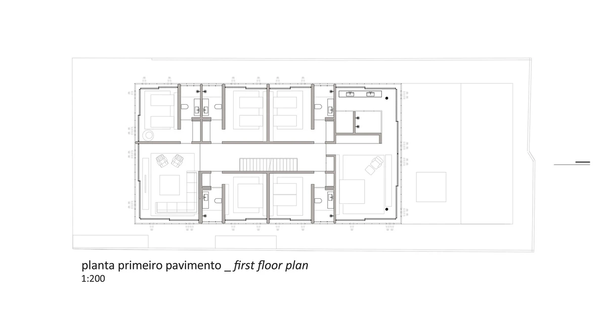
La primera planta se organiza de manera sencillísima en torno al núcleo de la escalera y contiene las zonas más privadas de la casa, el dormitorio principal, otros cinco dormitorios con baño y una segunda sala de estar. Las fachadas son libres y totalmente homogéneas. En lugar de la ventana corrida, todo el perímetro del primer piso está acristalado de arriba a abajo con paneles de vidrio que incorporan persianas blancas de estrías verticales, y al abrir las ventanas en las habitaciones, aparece un balcón.
La escalera llega hasta la cubierta de la casa, que también hace las veces de terraza. El resultado es una vivienda espaciosa, luminosa, abierta y perfectamente legible.
La Casa Blanca no reviste el menor afán de originalidad, ni falta que le hace. Es el tipo de proyecto reiterado una y mil veces desde los años veinte del pasado siglo, pero cuya persistencia en el tiempo no es sintomática de hastío o carencia de ideas, sino precisamente de su vigencia y eficacia. La casa podría haber sido distinta, pero difícilmente podría funcionar mejor.

















