SEAVIEW HOUSE de Jackson Clements Burrows
El proyecto, localizado en el sureste australiano, está firmado por el estudio de arquitectura Jackson Clements Burrows y forma parte de una zona ecléctica en cuanto a arquitectura se refiere en donde las construcciones contemporáneas se van abriendo paso entre casas del periodo de posguerra.


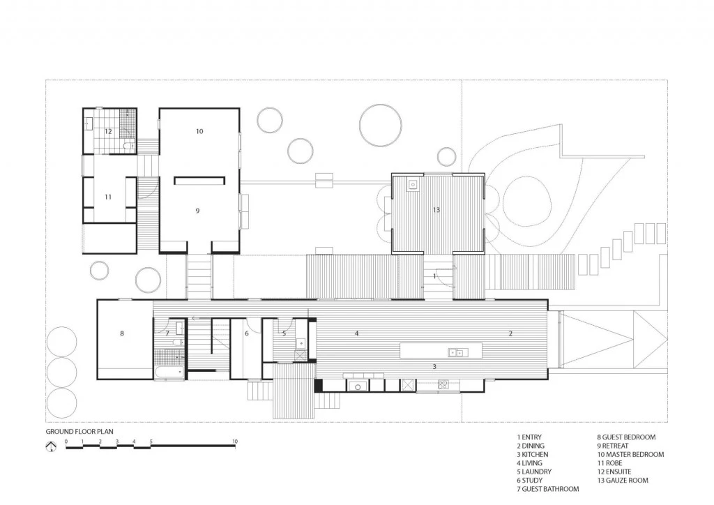
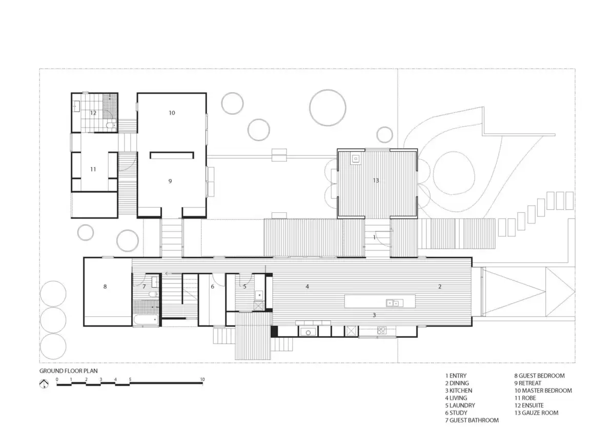
El objetivo fue reemplazar una vieja casa familiar por una construcción que tuviese en cuenta los estilos de vida de la familia: costero y rural, y para que la casa se convirtiera en la residencia definitiva. La casa se divide en tres pabellones conectados por enlaces acristalados que dan a un espacio ajardinado y protegido del viento. En el pabellón sur, donde se encuentran el salón principal de planta abierta, la cocina, el estudio, el lavadero y el dormitorio de invitados / baño se puede disfrutar de las vistas al río.
El edificio noroeste, con el dormitorio principal, vestidor y un baño privado. Y el volumen noreste que proporciona un espacio protegido del sol y que hace referencia a las granjas rurales tradicionales que usaban listones de madera para dar sombra, proporcionando, al mismo tiempo, ventilación cruzada. En este caso, la edificación está totalmente revestida en policarbonato translúcido y con listones de madera en su interior.
Los diferentes volúmenes se asientan sobre un muro perimetral de mampostería que divide un paisaje de grava y plantas y el patio de césped.

La construcción está dotada de un sistema de energía solar para agua caliente, recogida de agua pluvial, doble acristalamiento y de suelo radiante hidrónico.


Fotografías: Shannon McGrath





