15 de Mayo, unas oficinas respetuosas con la esencia arquitectónica de Nuevo León
El estudio de arquitectura mexicano Oficio Taller ha convertido una antigua casa tradicional en un moderno centro de oficinas en el casco histórico de Monterrey. El proyecto 15 de Mayo se sitúa en una de las esquinas de la plaza Mediterráneo, a solo tres manzanas de distancia de la Iglesia de la Purísima.
Se trata de una zona en plena transformación, con una creciente demanda de espacios comerciales, pero donde es importante conservar los restos de arquitectura vernácula de Nuevo León, que forman parte de la memoria de la ciudad.
Con este propósito, el equipo liderado por Marcela González Veloz mantuvo la estructura principal del edificio preexistente: numerosos muros de sillar y una cubierta con entramado de vigas de madera. Se repararon los elementos constructivos –muy deteriorados– poniéndolos en valor, y se amplió la estructura con nuevos volúmenes para adaptarla a su nuevo uso como oficinas.
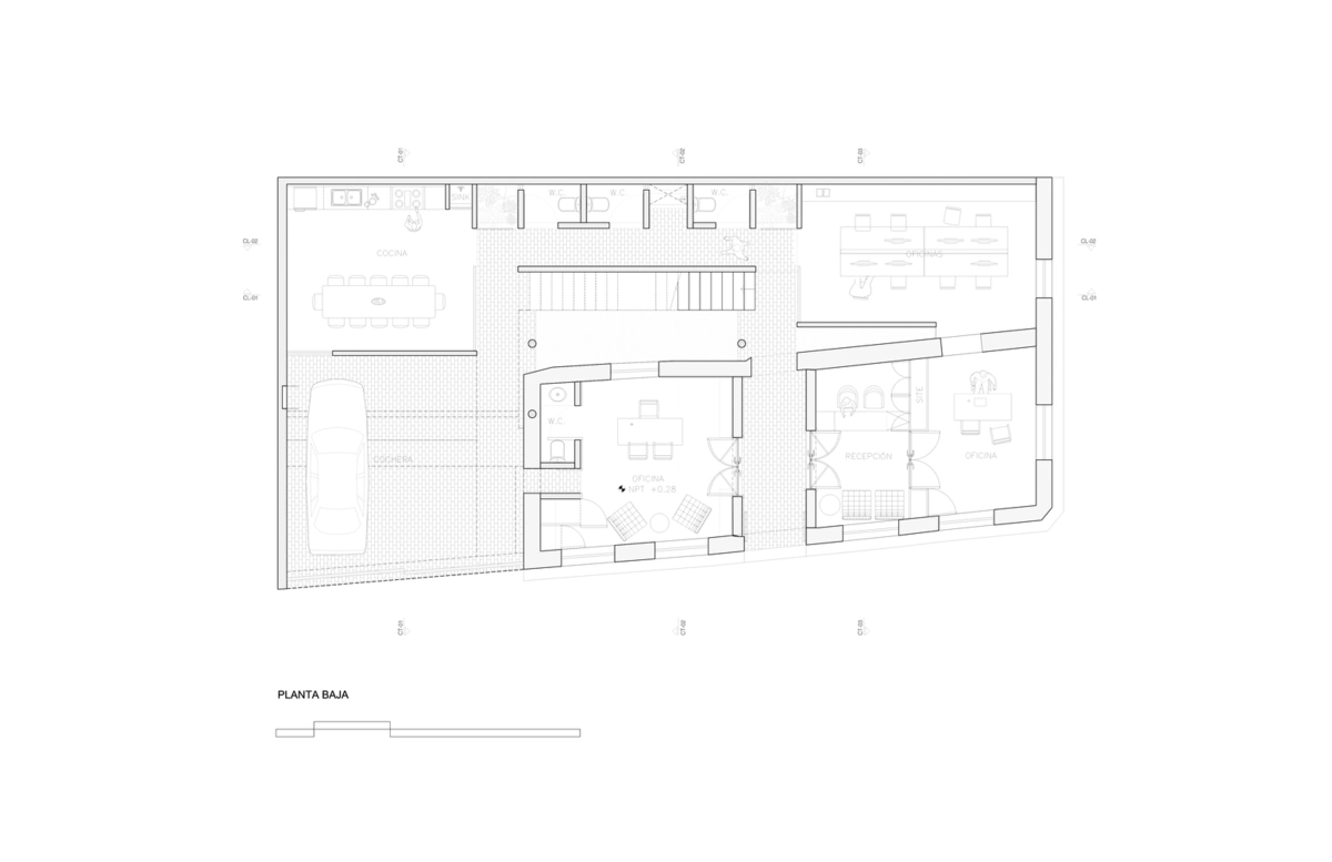
Tras demoler las ampliaciones efectuadas décadas atrás, el área trapezoidal de la parcela se articuló en torno a un pequeño patio interior a doble altura. La vivienda original en piedra ocupa por completo una de las esquinas, tomando las nuevas dependencias el resto del espacio. A fin de unificar ambas partes, se construyó también una delgada cubierta que actúa como plano de sombra para la azotea, destacando sobre el conjunto pero de forma sutil.
La antigua casa acoge el vestíbulo, la recepción y las oficinas principales, quedando el comedor, la sala de reuniones, la cocina y los servicios dentro del nuevo armazón de hormigón visto. Este material es una relectura moderna de los sólidos bloques de piedra de la parte rehabilitada, mientras que el entramado superior de madera rememora los techos ligeros originales.
Respecto a los acabados, las superficies lisas y neutras de la ampliación contrastan de forma equilibrada con los suelos de cerámica propia de la región. Siguiendo esta acertada mezcla de épocas, las molduras decorativas de las fachadas conviven plácidamente con el espejo de agua del patio interior o los peldaños flotantes de su escalera central.
Por último, la nueva terraza es un hermoso punto compartido desde donde disfrutar las vistas sobre la plaza, el resto del barrio y las montañas de la Sierra Madre.










