Omoya y Hanare: una redistribución del habitar social y privado
- Proyecto de YSLA Architects
- Fotografías de Munetaka Onodera
La propuesta Omoya y Hanare, de YSLA Architects, emerge como un experimento doméstico dentro del tejido residencial existente de Osaka. Ante el contexto de una población envejecida y un parque de viviendas deteriorado en barrios sociales poscrisis, los arquitectos —Natalia Sanz Laviña y Takeshi Yamamura— reinventan un complejo de viviendas construidas en los años 70 para proponer una nueva forma de habitar, más flexible y compartida.
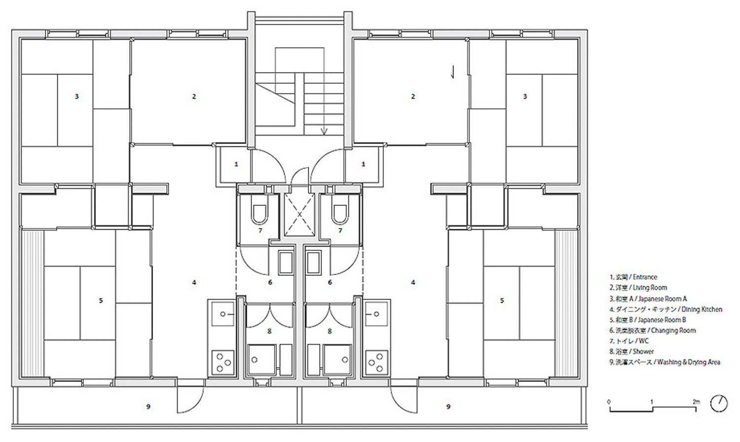
Este proyecto ganó en un concurso público promovido por la Osaka Prefectural Housing Corporation, con la premisa de transformar cuatro viviendas en dos unidades, combinando espacio privado y colectivo.
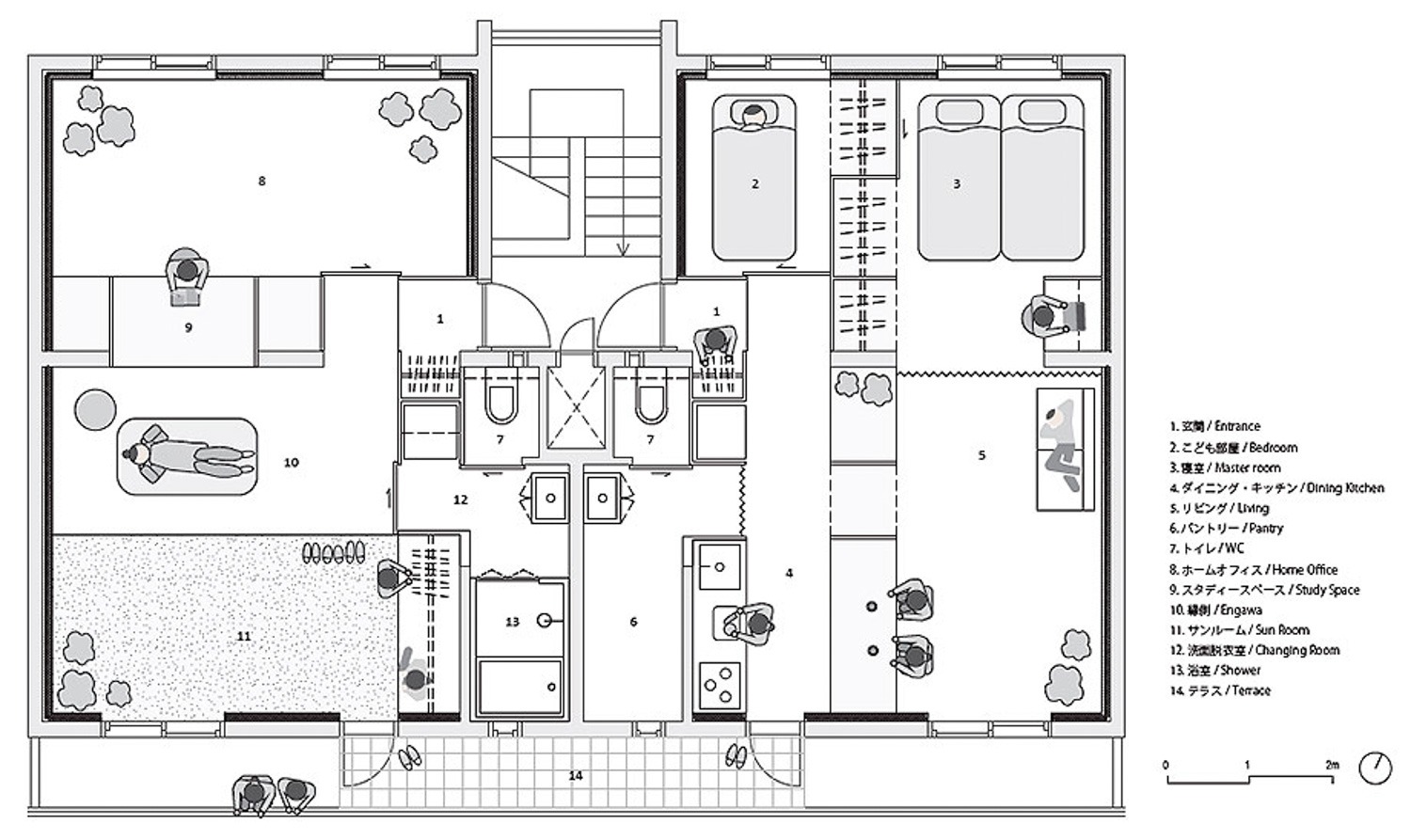
La solución formal articula dos entes: Omoya como núcleo privado y Hanare como espacio de uso público o semiprivado, un anexo donde se construye la posibilidad de vivir colaborativamente sin perder el resguardo íntimo.
Estrategias espaciales: continuidad y conexión
La intervención respeta las entradas originales de las viviendas. En lugar de demoler, el diseño recicla, remezcla recorridos y añade conexiones a través de terrazas y balcones compartidos. En este sentido, Omoya y Hanare propone un tránsito entre interior y exterior —una continuidad espacial sutil— que enlaza ámbitos antes aislados.
Hanare alberga espacios más públicos: salón expandible, zona de reunión, usos mixtos. Omoya concentra lo íntimo: dormitorios, zonas de descanso. No se trata de dividir por funciones clásicas, sino de permitir que los usuarios se redistribuyan según necesidades —trabajo, ocio, convivencia— entre ambos ámbitos.
Este planteamiento parece sugerir una arquitectura inacabada en el sentido de que deja espacio para que el usuario complete el proyecto con su uso, su vida y sus relaciones.
Materialidad, atmósfera y mobiliario mínimo
Los interiores se equipan con un mobiliario de madera minimalista que proporciona solo lo esencial. Esa restricción no es un límite: prioriza la calidad de experimentar el espacio antes que saturarlo. Las divisiones entre ambientes se realizan con piezas ligeras y elementos móviles, promoviendo la flexibilidad.
La paleta estética apuesta por la serenidad: maderas naturales, muros claros y transiciones visuales cuidadas. Nada que distraiga, pero todo con carácter y propósito.
Habitar como acto relacional
Omoya y Hanare no persigue la mirada escénica del espectador; es una arquitectura de proximidad que pone en valor la convivencia modesta. Ante un parque de viviendas envejecido, no levanta un nuevo emblema sino una sutura social. Porque en una ciudad como Osaka, tal vez lo que haga falta no es más vivienda, sino otra forma de vivir juntas y conectadas manteniendo la dignidad del privado.
Este prototipo construye menos para la novedad monumental y más para dar pie al reorganizar cotidiano. Una pieza arquitectónica que propone no solo residir sino compartir. Y si el tiempo tiene la última palabra, estas viviendas convertidas no terminan con el acto de construir, sino con el acto de habitar.